Avature I

Ofinas

- Madrid -

En pleno corazón de Madrid, en el barrio de Chueca, es el lugar que elige la puntera e internacional empresa en talent Acquisition and talent Management, Avature para instalar su sede española. Se trata de una empresa con una sólida base y un poder de crecimiento exponencial. Por eso, su localización debe estar ligada por un lado a la parte consolidada y representativa de la capital, pero por otro, el espacio de desarrollo de su actividad debe adaptarse a las necesidades de la empresa contemporánea en un sector en constante evolución.

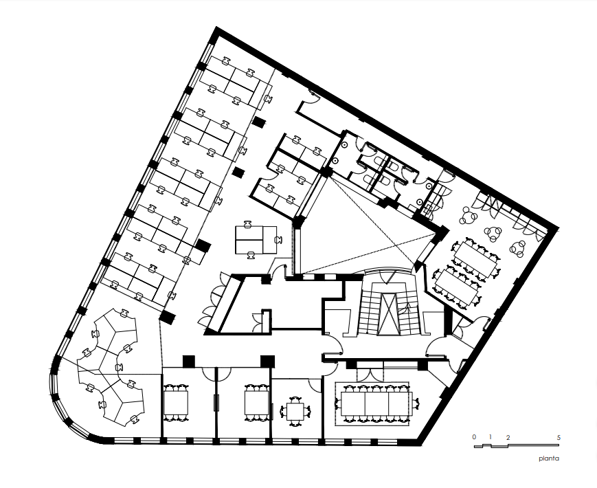
En esta planta, se buscaba la máxima flexibilidad de espacios por ello se reparten zonas de reunión para audiencias pequeñas y medias. Se dota de un esquema open office que permite el trabajo en equipo pero siempre permitiendo que cada usuario del espacio disponga de su espacio personal. Y por último, se agrupa el espacio office y el paquete de aseos para concentrar los ruidos en una zona que no influya en el buen desarrollo del trabajo. Las líneas de diseño que se trazan están siempre supervisadas por el CEO de Avature, que prima siempre la acústica y el contraste de un espacio neutro en acabados y transparente con abundancia de paredes de vidrio, con imágenes potentes que sirvan de inspiración para sus trabajadores.