Viviendas 4M

Residencial

- Madrid -

En uno de los núcleos mas demandado de la capital, Majadahonda, un área que no ha paralizado su crecimiento y en un área de nueva construcción, rodeado de naturaleza se nos plantea la posibilidad de desarrollar un proyecto de 4 viviendas unifamiliares.

El planteamiento de la propuesta es un estudio de la vivienda como elemento conceptual entre la masa y el vacío mediante la manipulación de un volumen original.

Como resultado se propone una arquitectura moderna que dialoga con la masividad de los materiales empleados en fachada y los vacíos de volumen para aportar luz a los espacios interiores de uso.

La arquitectura se implanta en la parcela y se produce el diálogo de los espacios interiores-exteriores y el aprovechamiento de la orientación para las unidades residenciales tipo.

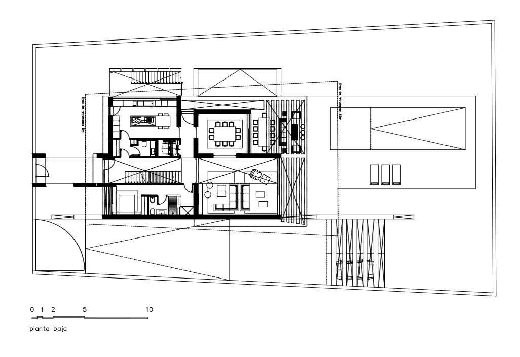
Se plantean las viviendas con un programa de uso público o de día en planta baja con el salón-comedor y cocina como espacios protagonistas abiertos al exterior de la parcela y la zona de noche ubicada en la planta superior. Quedan destinadas para la planta sótano las zonas de servicio e instalaciones.