Alicante II

Residencial

- Alicante -

Alicante II, es un segundo complejo residencial, perteneciente al mismo promotor que el complejo de Alicante I, de 22 apartamentos turísticos y local comercial, ubicado en una zona céntrica y tranquila de la ciudad de Alicante, esta vez, en una parcela amplia, en esquina.

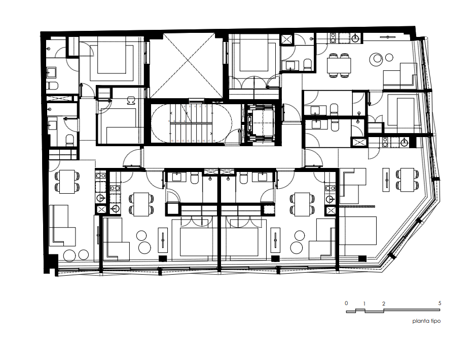
El edificio se desarrolla en planta baja y cuatro niveles + ático, y cuenta con 22 unidades de dos tipologías; una, de dos dormitorios y dos baños, con una pieza amplia de salón-comedor-cocina, y otra, con esquema abierto de salón-comedor-cocina y dormitorio y un baño. Cada nivel se organiza en 5 apartamentos contiguos, excepto la planta ático, que se distribuye en dos apartamentos, con terraza. A nivel peatonal y sótano -1, están localizadas las áreas comunes como el hall de acceso, un patio ajardinado, el gimnasio, la lavandería y zona de usos múltiples, así como un local comercial, mientras que en el último nivel, se incorpora el uso de la terraza el remate del edificio, con una piscina y zona de solarium.

La apariencia de las fachadas, se basaba en la expresión mediterránea, al utilizar GRC blanco y balcones continuos de forma geométrica, se busca la máxima luminosidad y esa sensación de intimidad para los espacios interiores.

la disposición de las costillas, que hacen la división de balcones, generan un juego de sombras, una trama de llenos y vacíos. La matriz está compuesta por planos de líneas oblicuas, que según incide la luz, éstas, dan profundidad y volumen a la fachada mientras que los grandes huecos de vidrio, funcionan como un tamiz de luz, que otorgan iluminación y privacidad hacia el interior de cada unidad.