Apartamento C98 - A

Residencial

- Madrid -

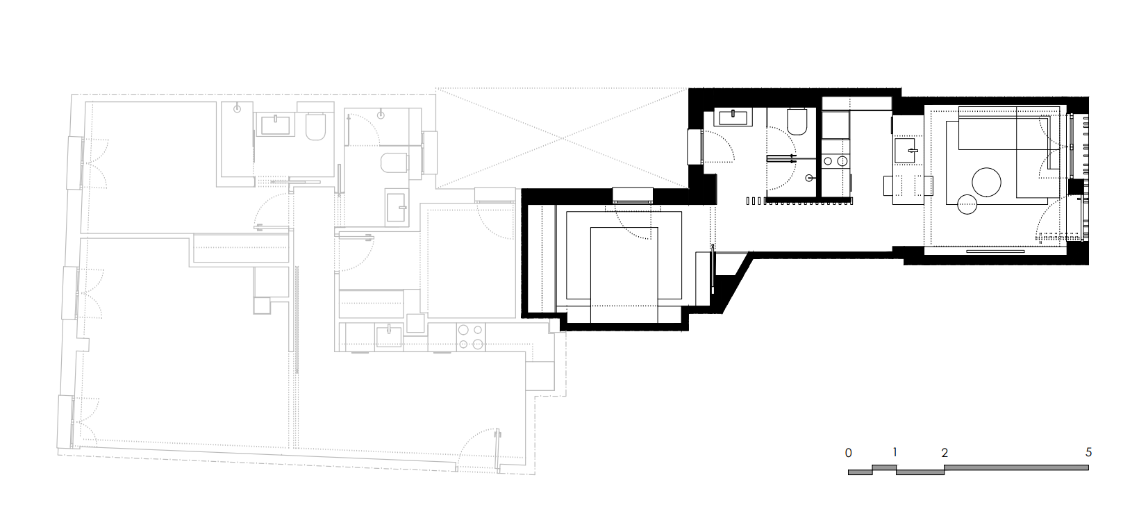
En el barrio de Prosperidad, nos encontramos con un antiguo local comercial, que se presentaba, en principio como un local sin demasiada iluminación y con una orientación no demasiado favorable, pero con mucho potencial. Con estos antecedentes, buscamos reconvertir el espacio en una configuración de dos apartamentos, modernos y funcionales, según las necesidades de sus futuros propietarios.

El apartamento A, de 40m2, de una habitación doble, un amplio baño y un espacio abierto de zona de estar, con cocina integrada, con acceso directo desde la calle.

La elección de los materiales, con la madera como protagonista, y los colores neutros, han sido esenciales en este proyecto, así como la nueva distribución planteada, para optimizar al máximo el espacio y aportar, tanto la máxima iluminación natural, como dotarle de una intimidad y calidez sensorial, en la experiencia de vivir en este singular apartamento.