Apartamento C98 - B

Residencial

- Madrid -

En el barrio de Prosperidad, nos encontramos con un antiguo local comercial, que se presentaba, en principio como un local sin demasiada iluminación y con una orientación no demasiado favorable, pero con mucho potencial. Con estos antecedentes, buscamos reconvertir el espacio en una configuración de dos apartamentos, modernos y funcionales, según las necesidades de sus futuros propietarios.

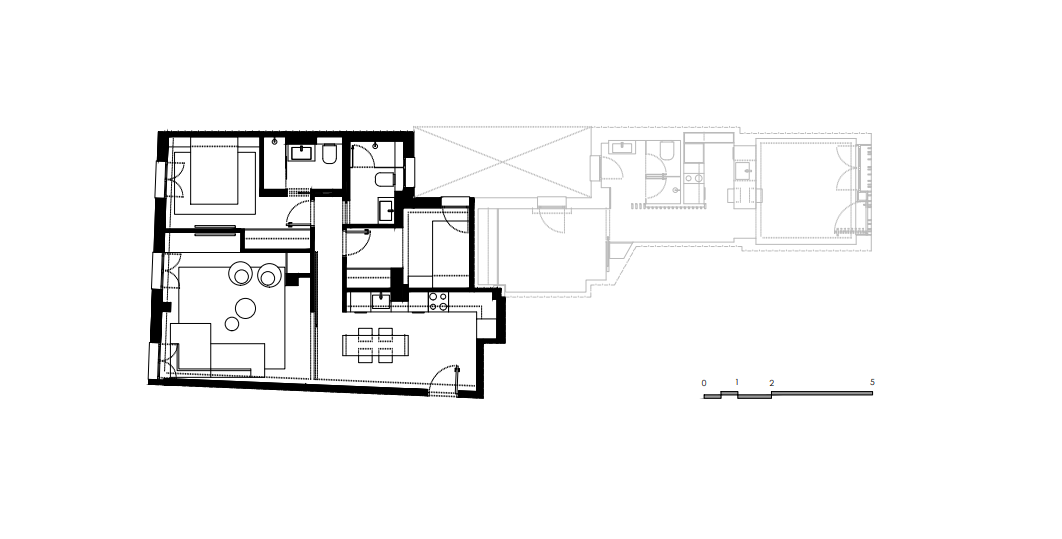
La redistribución total del apartamento B, de72m2, ha dado lugar a dos habitaciones, una doble y una sencilla, dos baños y un gran espacio abierto de zona de estar y cocina, de 32m2, con posibilidad de hacerlos independientes, mediante una gran puerta corredera de madera.

Siguiendo la filosofía que nos caracteriza y, al igual que ocurría en el apartamento contiguo, la mejora en la entrada de luz natural se completa con una cuidada elección de la materialidad y de la paleta cromática de la vivienda.

Pero detrás de esta imagen limpia y cálida, se esconde una profunda actualización de las instalaciones de toda la vivienda, así como dotándola de un sistema climatizado central a través de conductos, diseñando el mínimo falso techo necesario y los foseados, para incluir iluminación indirecta,  que dotan a esta vivienda de un carácter y personalidad especiales.