Villaviciosa I

Residencial

- Madrid -

Al oeste del área metropolitana de la capital, en pleno entorno natural se nos plantea la posibilidad de desarrollar un masterplan para 34 viviendas.

La propuesta nace del diálogo entre el territorio y la creación humana, de la búsqueda de la máxima integración en el entorno, de una arquitectura moderna y mediterránea, que se implanta en la parcela, buscando las mejores vistas y la mejor orientación para las unidades residenciales, teniendo en cuenta lo irregular de la parcela.

Las viviendas, como unidades resultantes de una organización a mayor escala del territorio que nos ocupa, se basan en un esquema claro y sencillo de uso y funcionamiento, que busca la luz y las vistas.

Se plantean las viviendas en una estructura de hormigón armado, con cubiertas planas invertidas, fachadas de grandes huecos acabadas en monocapa blanco y carpinterías de aluminio, lacadas en gris antracita.

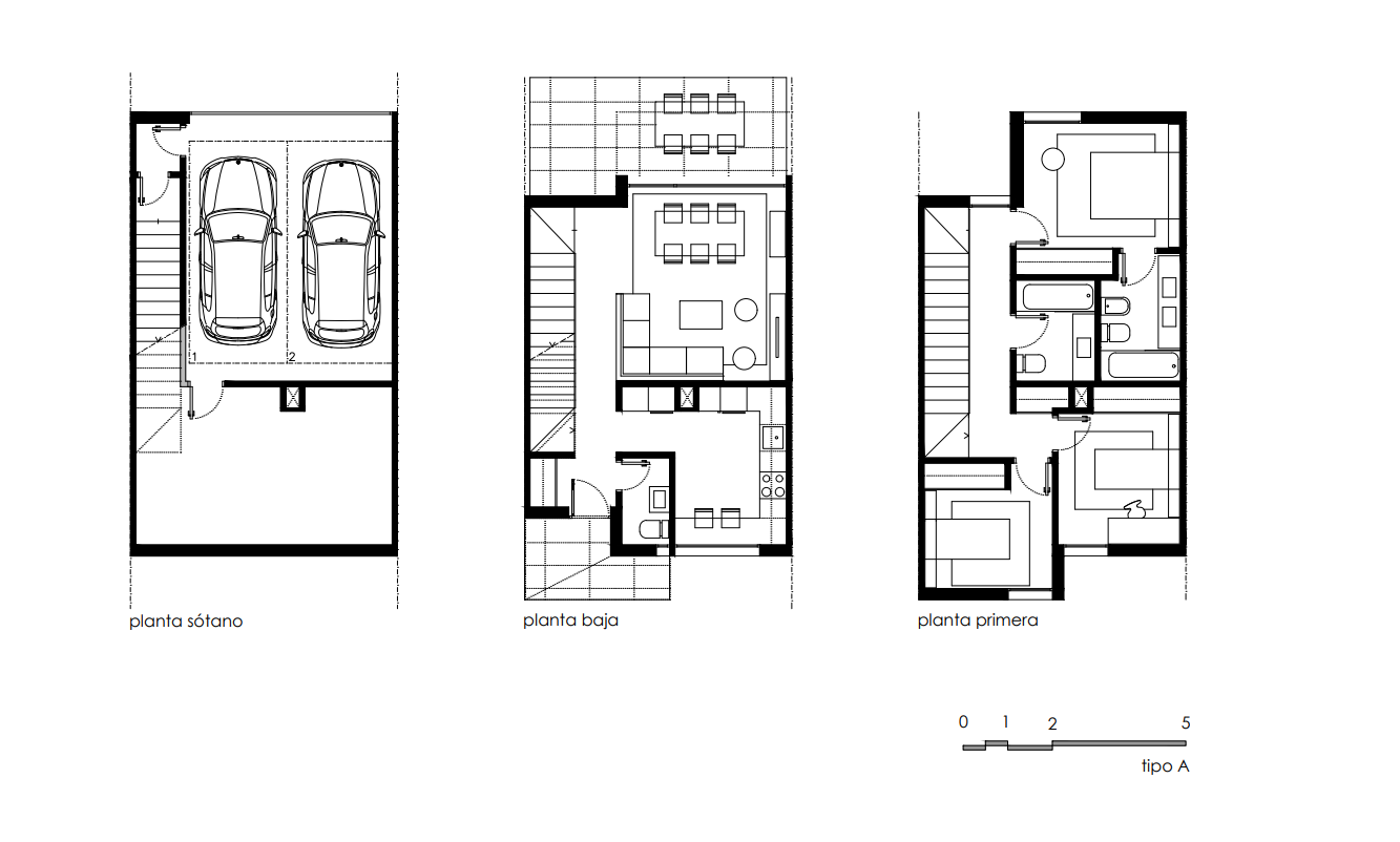
Se distinguen 2 tipologías distintas de vivienda, distribuidas en dos niveles sobre rasante y uno bajo rasante. La distribución interior de las viviendas sigue un esquema sencillo, en planta baja se distribuyen las zonas de día, cocina , aseo y ropero de cortesía y salón-comedor vinculados al jardín. En el acceso a la parcela se ubica una pérgola de aparcamiento para dos vehículos. En planta alta se ubica la zona de noche: los dormitorios, siendo el principal en suite, con orientación al jardín privado.